Dans cette gamme, pour une grande porte d’accès, nous vous proposons plusieurs portes étanches rectangulaire 455X755, 1000X600, 800X500mm ou carré 600X600, 750X750mm de passage utile Inox 304 ou 316L, avec une ouverture extérieure. Une fermeture étanche avec plusieurs volants de serrage d’après la pression de service. La porte doit être équipé d’un joint d’étanchéité (gomme naturel, EPDM, Nitrile, Néoprène, Viton, Silicone ou tresse fibre de verre) selon la température et du type du ou des produits qui seront en contact avec celui-ci. Notre équipe de techniciens est à votre écoute pour vous conseiller et vous proposer le matériel le plus adapté à votre demande.
- Portes extérieures rectangulaires 454X734 (Page 26)
- Portes extérieures rectangulaires 455X745(Page 27)
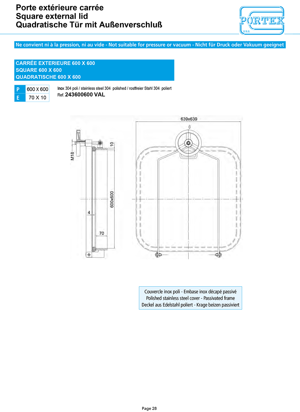
- Porte extérieure carrée 600X600 (Page 28)
- Portes extérieures rectangulaires 1000X600(Page 29)
- Portes extérieures rectangulaires 800X500 (Page 30)
- Portes extérieures carrées 600X600 et 750X750(Page 31)
- Porte exterieures rectangulaires 630X830 et 780X980 (Page 32)






